Ricerca Avanzata
Contattaci
-
0717923400 (tel./fax)
Via A.Costa 56 - 60019 Senigallia (AN)
-
Max Bocchini
-
Cristina Tanfani
Torna indietro |
Casa indipendente in Vendita - Morro d'alba | euro 190000
MQ. 230 - Rif. A4793
- Italiano
- English
Casa Colonica Panoramica tra Vigneti e Uliveti - Un`Occasione Unica!
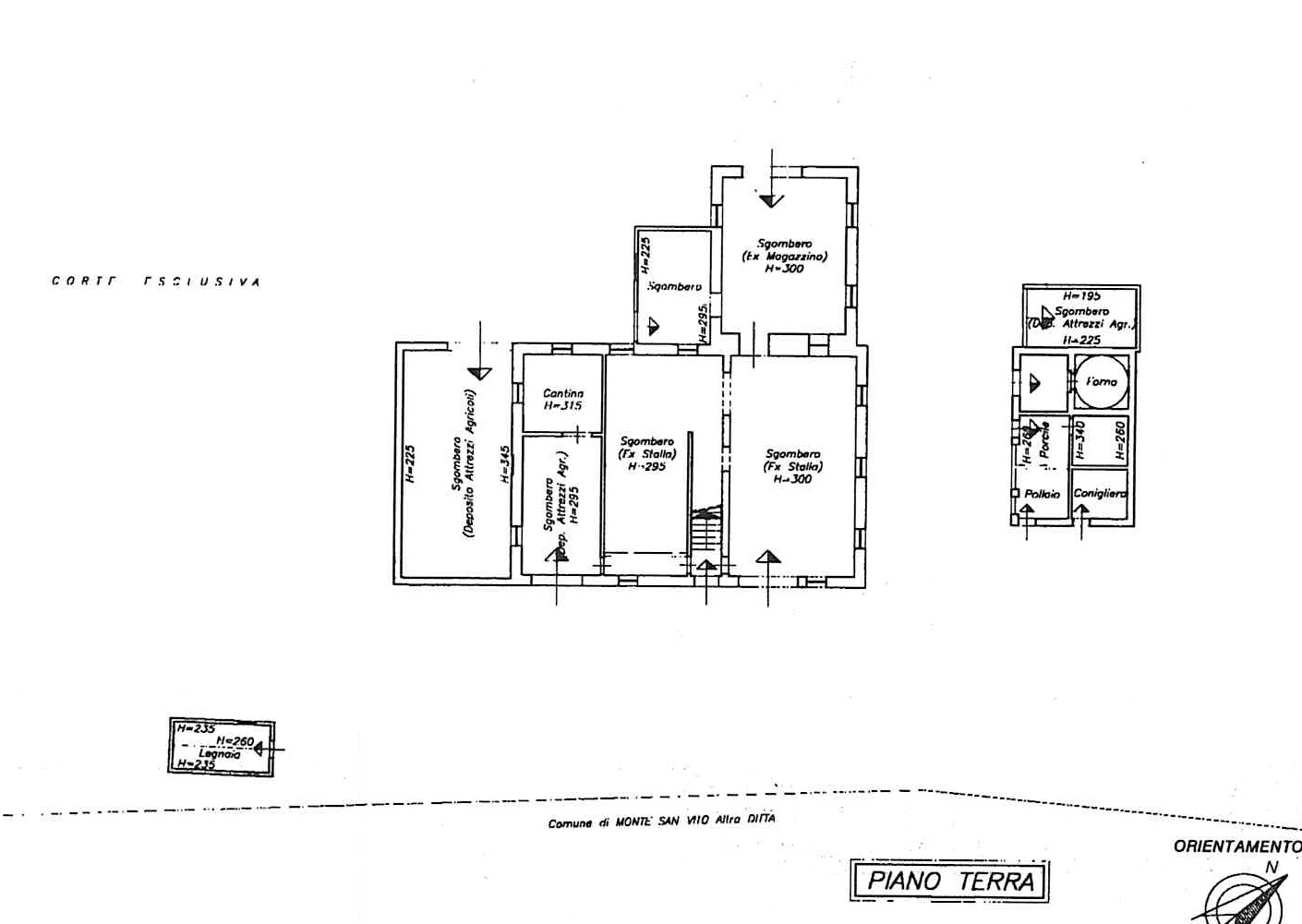
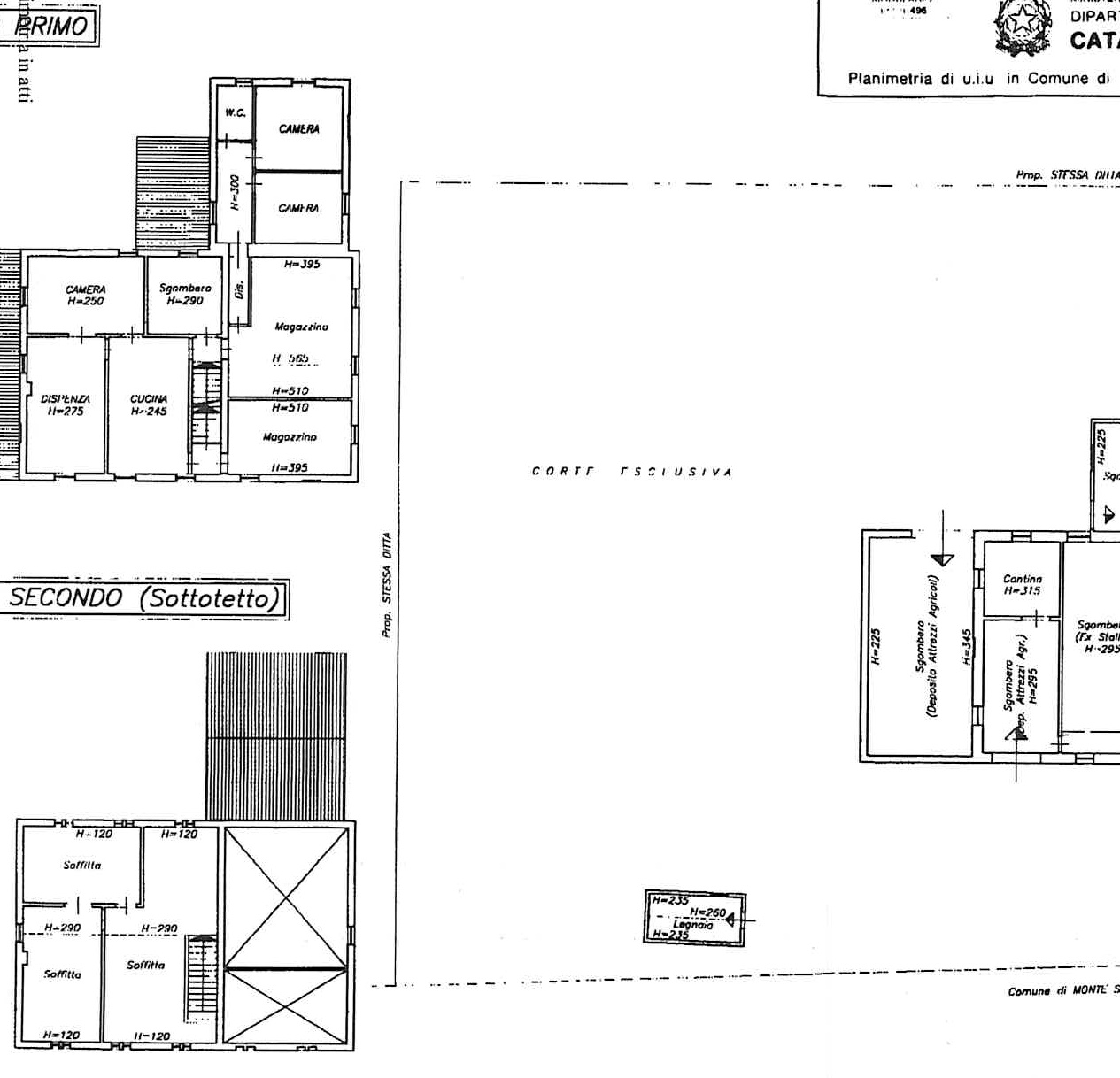
Scopri questa splendida ex casa colonica immersa nel cuore della natura, circondata da vigneti e uliveti. Con una superficie totale di circa 300 mq distribuiti su due livelli, questo immobile offre spazi ampi e luminosi. Al piano terra, troverai sei vani, tra cui una cucina accogliente, perfetta per preparare deliziosi pasti. Il primo piano ospita un soggiorno doppio, una cucina abitabile, cinque camere da letto e un bagno, ideale per famiglie numerose o per ospitare amici.
La soffitta al secondo piano, con un`altezza di 2.90 metri, offre ulteriori possibilità di utilizzo. Al piano terra, due accessori come un forno sgombero/garage e una legnaia completano l`offerta. Il giardino piantumato di circa 3000 mq è un vero angolo di paradiso, arricchito da piante ad alto fusto e un uliveto che regala un`atmosfera di tranquillità e bellezza.
Situata all`ultima casa di una via comunale, questa proprietà garantisce privacy e panorami mozzafiato. Inoltre, c`è la possibilità di acquistare fino a 13 ettari di vigneto, rendendo questa casa ideale per chi desidera avviare un B&B o semplicemente godere della vita rurale. Le opere edilizie già realizzate, come il tetto e le gronde, assicurano una struttura solida. Non perdere l`occasione di vivere in questo angolo di paradiso!
Rif.: A4793 -
Rif.: A4793 -
Caratteristiche immobile
- Residenziale
- G (120 kWh/mq anno)
- 13
- 2
- 230
- box triplo / - m²
- A4793
- Vendita
- No
- terra
- -
- da ristrutturare
- libero









