Ricerca Avanzata
Contattaci
-
0717923400 (tel./fax)
Via A.Costa 56 - 60019 Senigallia (AN)
-
Max Bocchini
-
Cristina Tanfani
Torna indietro |
Appartamento quadrilocale in Vendita - Ostra | euro 115000
MQ. 90 - Rif. A4807
- Italiano
- English
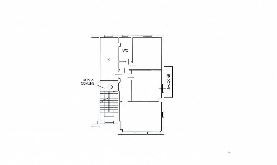
Ostra - adiacente al centro storico, vista panoramica sugli appennini, appartamento al primo piano in piccola palazzina esternamente ristrutturata, l`appartamento ha una superficie di circa 90 mq composto da salone, cucina, due camere, bagno e balcone. Al piano seminterrato troviamo il garage singolo ed un`ampia cantina, completano la proprietà un piccolo orto sul retro della palazzina. Rif. A4807
Rif.: A4807 -
Caratteristiche immobile
- Residenziale
- E (60 kWh/mq anno)
- 4
- 1
- 90
- box singolo / - m²
- A4807
- Vendita
- No
- primo
- metano autonomo
- abitabile
- libero








